Karopka 3.0

Бот «Фортуна» XVII в.

Автор: Билли Бонс Размещено: 10.11.2025 · Алексей Лежнев 227 просмотров
Производитель:
LS MODEL
Масштаб модели:
1:24
Тип обзора:
Модели
Тип модели:
Корабли

Бот «Фортуна» — единственный сохранившейся до наших дней корабль потешной флотилии последнего русского царя и будущего российского императора Петра I на Плещеевом озере. Тем самым, безусловно, представляет огромную историческую ценность. Царь Пётр I принимал активное и непосредственное участие в строительстве бота. Судно имеет полные, почти круглые сверху обводы носа и кормы на голландский манер того времени. Ботик рассчитан на пять пар вёсел. В средней части носовой банки установлена мачта. В качестве парусного вооружения использован гафельный или шпринтовый грот и треугольный фок (кливер). Рулевой управлял ботиком с помощью навесного руля с железным румпелем

 Потешная флотилия в том числе и ботик «Фортуна» строились на Плещеевом озере в 1689—1692 годах. 7 (18) февраля 1722  года вышел указ царя содержащий повеление хранить навеки остатки кораблей, яхт и галер, на которых царь впервые изучал морское дело. Данный указ является первым в России законом об охране исторических памятников. Но в пожаре 1783 года погибли все суда потешной флотилии, хранившиеся в Переславле. Ботик «Фортуна» уцелел, так как остался в селе Веськово под надзором уездного суда. 1 (13)  августа 1803  ботик поставлен в каменном здании музея-усадьбы «Ботик Петра I» г. Переславль-Залесский Ярославской области.

Размеры модели: длина 306 мм, ширина 97 мм, высота 290 мм Артикул: LSM0201

Цена в интернете: от 2690 руб.

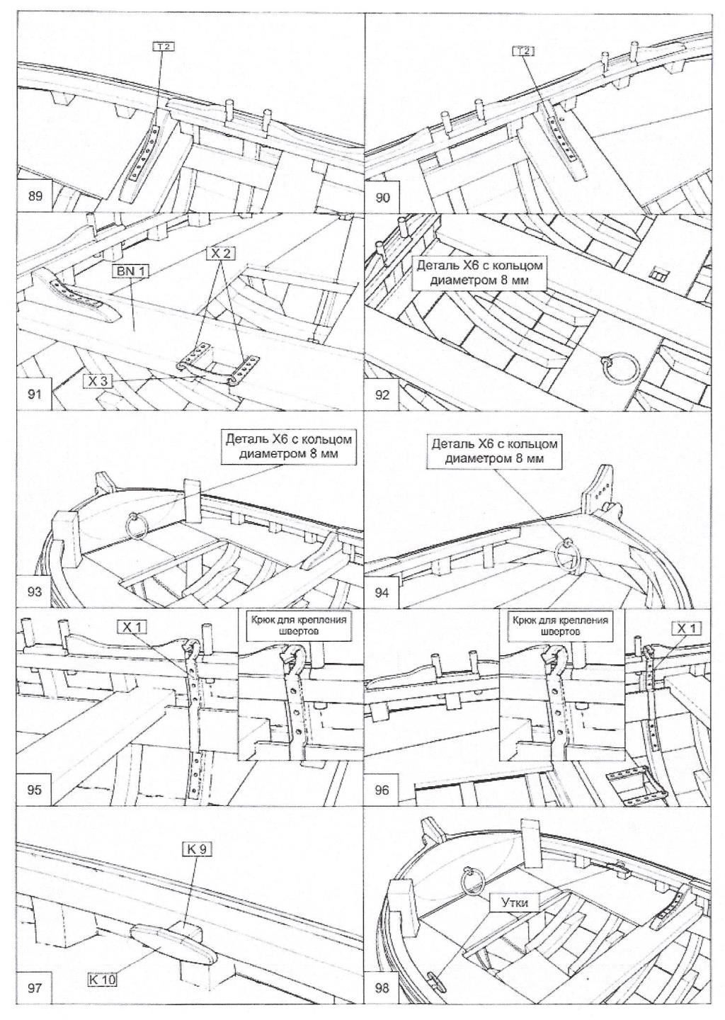
В набор входят: элементы деталей, изготовленные из благородных пород дерева (полный лазерный раскрой), подробная фотоинструкция с пояснениями сборки модели, нити для изготовления такелажа, латунная проволока, фототравлённые детали из латуни. Вместо заявленных производителем пошитых парусов в наборе присутствует ткань, что скорее порадовало, чем огорчило.Для удобства сборки корпуса в наборе предусмотрен кондуктор.

Оценки

Пока нет оценок.

Войдите, чтобы оценить работу.

Комментарии (4)

Andrej.Tatarinov Andrej.Tatarinov

На сайте с 20.10.2019

84     0

Приветствую!
Про данного производителя могу сказать очень даже неплохо!
Ваял новгородскую ладью с небольшими допами. Всё понравилось все стыкуется, всего хватает.
Из косяков были перепутаны два шпангоута. В наборе тоже была только ткань
Пожалуй это даже плюс.
Спасибо за обзор.

Ni
Nickie

Спонсор

На сайте с 31.05.2015

6     1122

Интересный обзор и интересный прототип.

Фидель Фидель

На сайте с 22.03.2014

110     12133

Спасибо за обзор!

Алексей Лежнев Алексей Лежнев

Администратор

Эстет

Спонсор

На сайте с 26.10.2009

30     17051

Спасибо за обзор.

С Уважением, Алексей.

Войдите, чтобы оставить комментарий.