@Юрич написал:Нет, Саш, я про траки- половина стандартные, половина- расширенные "зимние"
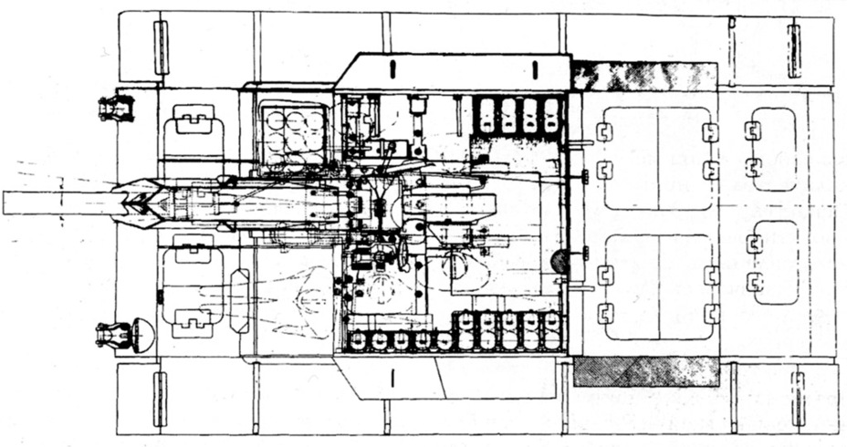
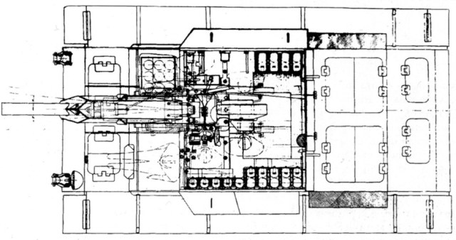
в работе диорама: немецкий самоход с экипажем на улице города
Саня, Толик, Юрич, спасибо за позитив! Траки разные, в каждую ленту штук по 14-15 вживил ранних с полым гребнем, плюс поломанные винтеры. С ведром, да и с остальным багажом ещё буду работать.
Закончил модель и фотосессию, приглашаю к просмотру!
http://karopka.ru/community/user/16816/?MODEL=504400
Всем привет!
Решил продолжить свои фантазии на тему СГ
Не знаю на сколько меня хватит, но пока в планах сделать как минимум две разные рубки и хотя бы одну воссоединить с корпусом.
Одну буду делать по типу своей первой СГшки, то есть такую машину, которая побывала на полях сражений.
Пока известны только два фото плюс есть немного чертежей.
Эта машина будет "основной" задачей, ибо хочу сделать её с интерьером, не полным, движка и трансмиссии нет, а вот БО хочу попробовать сделать. Для этого от МиниАртовской СУ-122 оставил весь интерьер плюс качающую часть от орудия.
Второй задачей будет сделать раннюю рубку, увеличенную от немецкой всего на 100 мм.
Строить начну вот из этого
Кит от Дрегона № 6851, если интересно, на моей странице есть обзор на этот набор;
два набора травлёнки от Абер, полки и мелочёвка;
два набора смоляных катков от SPM, но пока не решил точно, буду ли я их ставить или оставлю на родных катках;
траки, винтеры от Фриула и смола от Мастер Клуб, тоже пока не определился которые ставить;
смоляные ППШ от Мастер Клуб, это в рубку повесить;
ствол от Меджик Моделс;
травлёный короб с дымовой завесы от Вояджера, но скорее всего его ставить не буду, ибо в наборе травла от Абер он уже есть.
Думаю ещё подкупить гаубицу М-30, скорее всего от Звезды, так как бюджет не резиновый, да и нужна она будет далеко не вся.
Всем привет!
Итак, начало положено, собрал ходовку, ленивцы с ведущими попили крови. Приличные смещения, в трудно доступных, но зато в очень хорошо видимых местах.
Подсобрал внутрянку, ну и не выдержал, поставил на родную станину станок орудия(из убогой смоляной конверсии от Кондора) и на него орудие из остатков от Миниарт.
В принципе, практически всё сходится довольно прилично, даже высота почти подошла.
На максимальном вертикальном возвышении всё проходит, ничего не цепляет. А это при том что смоляная рубка(из той же убогой конверсии) имеет немалую толщину.
За бардак на столе извиняйте, так сказать фото с пылу, с жару)))
Всем привет!
Пилю потихоньку дальше, спаял два стеллажа под снаряды и склеил один под гильзы. Под них же будут ещё три полки по бокам рубки, обозначил черновыми обрезками.
В статьях по СГ кое-где упоминается о боекомплекте в 50 выстрелов, а на чертеже видно только 41 снаряд плюс 40 гильз, я решил добавить пару снарядов "быстрого реагирования", рядом с ними добавил три гильзы, теперь выходит равное количество снарядов и гильз, 43/43.
Так же собрал новую станину, размеров нигде не нашел, делал "на глаз".
Начал собирать рубку.
По сути больше времени "топчусь на месте" пытаясь найти или вычислить размеры, которых в большинстве нужных мне случаях нигде нет.
Да, выяснился ещё один момент, крышу хочу сделать съёмной, из-за этого в глаза будет сильно бросаться отсутствие трансмиссии. Сделать её сам не смогу, а на продажу нашел только для Г-шки.
Короче, с каждым днём всё чаще и чаще возникает мысль, что "не по Сеньке шапка", то есть для меня самодельный интерьер...
Классные полочки, да и задумка в целом!
Думал ты только крышу рубки хочешь сделать съемной?
в работе диорама: немецкий самоход с экипажем на улице города
@Александр Христенко написал:Классные полочки, да и задумка в целом!
Думал ты только крышу рубки хочешь сделать съемной?
@Ваня Булочник написал:Под эти полочки надо ещё кучу снарядов и гильз подготовить, так что спаять и склеить их было наверное самым лёгким делом)))
Крышу да, планирую делать съёмной, поэтому и задумался о приобретении вот этого набора http://www.westfront-shop.ru/catalog/cmk/5403/
в работе диорама: немецкий самоход с экипажем на улице города
@Александр Христенко написал:Снаряды, проще всего, наверное, отлить в смоле, а вот гильзы, вероятно, придется купить.
"есть у меня такое предположение, то что мы принимаем за петлю люка есть ни что иное как ещё одна смотровая щель, на этом же уровне она видна на правой стенке рубки".
Я полагаю, это смотровая щель.
@Кирилл Халевин написал:Я полагаю, это смотровая щель.
Всем привет!
Продолжаю строить. Пришел к выводу, что ставить орудие от СУ-122 будет неправильно, так как М-30 для СУшки переделывалось, так сказать подгоняли под рубку. А в СГ ставили полевую гаубицу, практически без переделок.
По хорошему(и по советам коллег)лучше поставить орудие от Трубача, от Звезды оно убогое, но имеем что имеем. Стройка быстрой не обещает быть, может и обзаведусь Трумпетером.
Пару раз переделал рубку, немного уходила от размера в ширине, то в плюс примерно на 0,3-0,4 мм, то так же, только в минус.
На данный момент вывел в "ноль", в принципе сошлись размеры и по ванне и по реальным данным.
Соорудил бронировку откатных механизмов. Тоже не всё срослось с первого раза, ширина по "скулам" ушла почти на миллиметр в плюс, придётся переделывать.
Пока есть задумка и бронировку сделать съёмной, а там видно будет.
Латунный ствол сильно перевешивает, надо будет этому моменту уделить внимание, фиксировать не "кайф", хочется чтоб было "рабочее" орудие.
Из листовой латуни соорудил модернизированный щиток, попутно переделав все его крепления. В принципе, довольно похоже на оригинал. Крепления ещё не все закончил, он пока временно установлен.
Сделал первые уголки дополнительной жесткости между дном и бортами. Всё пока на блютаке.
Ну и самый интересный для меня момент, люк на лбу рубки всё же поместить можно, теперь дилемма ставить или нет? С одной стороны, с ним машина интереснее будет смотреться, а с другой, всё же остаётся сомнение о его наличии на реальном образце...
Всем привет!
Итак, после почти восьми месячного модельного простоя вернулся к своей стройке. Возвращался плавно, начиная со сборки траков и ЦМ катков, так же собрал и обычные траки из смолы, но пока так ещё и не определился с выбором ни по тракам, ни по каткам. Пока обул винтеры и поставил на ЦМ катки.
Во время пандемии всё же умудрился приобрести смоляной набор трансмиссии от СМК. Хоть этот набор и предназначен для Дракоши, только для старых выпусков, а у меня довольно новый кит.
Но таки удалось всё подогнать под новую модель, правда ширину пришлось нарастить.
Спаял два недостающих стеллажа под заряды, сами заряды решил исполнить из металлической трубки, дабы сохранить нервы и сэкономить время, так как при обработке зарядов от МиниАрт и того и другого было бы потрачено не мало. Помимо небольшого смещения прессформ, а это весьма весомый дефект для таких деталей, они отлиты вместе с имитацией ремешков и т.д. Посчитал, что быстрее будет сделать новые, чем обработать имеющиеся.
В принципе, всё становится на свои места довольно правдоподобно и схоже с чертежами. Столкнулся с небольшой проблемой по смотровой щели и бойнице по левой стороне рубки. Ни первая ни вторая там попросту не помещаются, стеллаж под заряды как раз закрывает это место. Переносить особо не куда, если только на лобовую деталь. Но под ней мехвод, а ему это наверно не понравится)))
Спаял обе полки. Первый раз сталкиваюсь с таким травлом: перфорация выполнена сквозной, то есть полки просвечиваются. От сюда и такая не аккуратная пайка, при припаивании антискользящего листа к раме олово проходит на лицевую поверхность. Как это будет смотрется после окраски не знаю, но немного настораживает.
Ну и попутно делаю ещё одну рубку, сначала она была чем-то вроде черновика, но решил и её довести до ума.
Так же столкнулся с ещё одной задачей. Антенный ввод да и сам радист находились по правой стороне рубки. А вот куда они умудрились впихнуть рацию, (не огромную конечно, но и не маленькую) ума не приложу.
Судя по некоторым статьям об устройстве и эксплуатации СГ-122 рация на ней стояла 9-Р “Тур”
Действительно, нафиг Миниарт со своими интерьерными моделями, когда можно все самому сделать ![]()
@Алексей написал:Действительно, нафиг Миниарт со своими интерьерными моделями, когда можно все самому сделать
Всем привет!
Продолжаю по малу, в основном занимался сварными швами как с наружной так и с внутренней стороны рубки. Мелкие швы мне не нравятся, переделывал не один раз, но так и не смог разительно улучшить результат. Когда-то давно пытался варить в реале, результат такой же был, видать не дано)))
Сделал крышу, пластик 0,5 мм. Решил таки задачу с радиостанцией, собрал подобие блоков от неё и спаял под них маленький стеллаж. Ставить буду на лобовой лист, аккурат под антенным вводом.
Немного поработал с орудием, поставил панораму. На крыше под неё буду делать не сдвижную заслонку, как делал это раньше, а люк откидывающийся в лево. Под него сделал из латуни маленькие петли. В какой-то из статей о СГ читал о такой замене после заклинивания заслонки.
Так же в рубке поставил визоры мехводу, кое что от Драши, кое что от меня. Всё таки добавил смотровую щель и бойницу на левую сторону рубки. Смотровые щели изначально сделал через чур большими, сузил в половину. Ещё буду делать смотровую щель с пистолетным портом на кормовом люке рубки. Ещё в рубке поставил два плафона освещения, пока закрыл их патафиксом дабы не поцарапать. Проводку добавлю позже.
Переделал замки на люках на ВЛД, первый вариант из травла был через чур громоздким.
Ну и добавил себе ещё одну задачку, взяв в стройку ещё и Оскеттены от Мастер Клуб. Теперь надо выбирать какие из трёх ставить, собственно как и с катками дело, три разных варианта.
Ну и о приятном. Мой друг и главный соратник по теме СГ Сергей (don_salluste_) сделал мне шикарный подарок к новому году!
Просто куча ништяков для этой и последующих строек: латунные трубочки, разнообразные петли, авторская бронировка панорамы, поддерживающие и опорные катки, ведущие с ленивцами...
И на вершине всего этого добра гордо стоит рубка для СУ-76И!!!
@Ваня Булочник написал:Ну и добавил себе ещё одну задачку, взяв в стройку ещё и Оскеттены от Мастер Клуб. Теперь надо выбирать какие из трёх ставить, собственно как и с катками дело, три разных варианта.
в работе диорама: немецкий самоход с экипажем на улице города
Саша, та на винтерах была, но ты скорее прав чем нет.
Хотя в какой-то из статей по СГ я читал о применении широкой гусеницы.
@Ваня Булочник написал:Саша, та на винтерах была, но ты скорее прав чем нет.
Хотя в какой-то из статей по СГ я читал о применении широкой гусеницы.
в работе диорама: немецкий самоход с экипажем на улице города
Винтер это зимняя, а ост это восточная, именно для наших условий.
Буду дома постараюсь найти эту статью.
По поводу хватило бы или нет не знаю, но чего тогда не хватало точно, так это более или менее целых образцов техники.
@Ваня Булочник написал:По поводу хватило бы или нет не знаю, но чего тогда не хватало точно, так это более или менее целых образцов техники.
в работе диорама: немецкий самоход с экипажем на улице города
Всем привет!
Продолжаю стройку. На соседнем форуме было несколько замечаний в плане матчасти:
первое- это заглушки пистолетных портов, через чур громоздкие;
второе- это бронировка визора мехвода(боковая), сильно выраженные углы;
третье- это прямые планки соединения старой и нарощенных стенок рубки(внутренняя часть), в реале скорее всего делали бы волнистые полосы, типа чем длиннее сварочный шов- тем крепче.
Всё это переделал, так же переделал уголки под крепление крыши. Как бы не старался, так и не смог сделать соосными отверстия на крыше и медных уголках. Переделывал раза три. В итоге установил пластиковые уголки уже сразу на крыше, тем самым добившись что-то типа пазов для более или менее ровной установки крыши. Так как крыша будет съёмной, это только плюс. Ну и сделал установил люки.
Всем привет!
Продолжаю стройку. В принципе, уже вполне угадывается образ САУ, не хватает только экранов на лбу рубки.
Доделал бронировку откатных механизмов, это одна из немногих деталей полностью готовых под покраску...
Переделал заглушки бойниц и сами бойницы, на заглушки сделал защёлки. Обварил переделанные ренее планки соединения старой и нарощенных стенок рубки(внутренняя часть), если честно, сварка уже в печёнке сидит, а надо ещё по корпусу швы переделать. Добавил бойнице на кормовой люк, в голове это виделось несколько гармоничнее, чем получилось. Повесил три ППШ для экипажа. Окончательно установил полки и два стеллажа под заряды, на стеллажах заменил ремешки.
Практически закончил с крышей, остался только антенный ввод сделать и установить. Все замки зачем-то сделал рабочими, хотя понимаю, что после грунта и окраски таковыми они перестанут быть.
Чтобы не делать замки и на кормовом люке, верхний сделал с уголком, он фиксирует кормовой в закрытом положении.
Хороший прогресс! Подвижные части к сожалению после грунта и краски зачастую перестают таковыми быть, это точно, или начинают задирать эту самую краску. А левую гусеницу специально задом наперед одели? Плюс разные опорные? Ремешки на ППШ хорошо, но на фоне всей работы выглядят простовато, "не верю" если сказать по Станиславскому. В остальном огонь!!!
Кирилл, спасибо!
С гусеницей просто ошибся, собирал уже ночью. Катки буду ставить родные, а сейчас просто для вида.
Ремешки может и переделаю, не знаю. Там просто для нормального вида надо ставить скобу на стволе и прикладе, в принципе возможно, только контакт с клеем будет минимальным. Отлетать будет на раз.
@Ваня Булочник написал:Там просто для нормального вида надо ставить скобу на стволе и прикладе, в принципе возможно, только контакт с клеем будет минимальным. Отлетать будет на раз.
Скобу можно сделать только-только, чтобы не было большого зазора, тогда супер клей хорошо все схватит. Я делал такие на Мосинку (там, правда мелкие ремешки вместо скоб), но все держится хорошо.
Ну или вариант повесить их так, чтобы ППШ закрывал собой то, что не должно быть видно))