Доброго времени суток уважаемые Коропчане! Сегодня начинаю новую сказку о постройке систершипа Авроры, крейсера 1 ранга Паллада. Стройку планирую вести на момент пребывания крейсера в греческом порту Пиреия в декабре 1902 года, Эгейское море, при переходе на Дальний Восток.
Что имеем из материала. Как всегда набор пластика От Огонька 1/400 масштаб. Разные допы, смоляные деталюхи, травление и прочие. Краситься модель будет в белый цвет с желтыми трубами.
На фото крейсера в Пиреях и перед уходом на Восток. А так же допы.
Привет, Саша.
Очередная богиня? А почему не богин? Нет, чтобы Юпитера какого замутить или Аякса.
Успехов в постройке. Если не ошибаюсь, про якоря не забудь, вроде отличаются от Авриевых.
С уважением, Юрий.
Что касается ума, он светлехонек весьма:
cлава Богу, отличаем незабудку от дерьма!
Ну тогда давайте, помогайте. Есть всё таки некоторые трудности в стройке. Например, ходовая и кормовая рубки, ну т. д.
Про якоря знаю. Уже есть в смоле. Есть на фото в 1 топе
Предупредил бы, что пушки нужны в 400-м, я бы перемасштабировал.
Домашняя судоверфь: https://vk.com/club236993090
И паровые катера другие
Кстати, да. Должны быть типа "Птичка".
Тоже есть в наличии и тоже можно отмасштабировать из 350-го в 400-й.
Домашняя судоверфь: https://vk.com/club236993090
Лучшее - враг хорошего.
Привет из Владивостока!
Если будете "масштабировать"- можно и на на масштабировать стволов 305 мм в 400-м и 152 мм тоже в 400-м? Спасибо.
С уважением, Юрий.
Что касается ума, он светлехонек весьма:
cлава Богу, отличаем незабудку от дерьма!
Приобрел на досуге бумажную Диану в белом окрасе.
с удовольствием посмотрю на будущее!
Большая просьба атрибутировать приложенные фото, которые не подписаны.
И задам свой больной вопрос про такелаж: по каким источникам планируется?
Александр Семенов
Александр, про такелаж. Вообщем то планирую по фото, по моделям наших уважаемых гуру. Особенно буду ориентироваться на модель "Авроры" Вадима Попова ( Vadim 64 ). Приступаю к сборке . Первым делом хочу сказать, что перепак от" Моделиста" Авроры , которую я собирал, оценил бы на пятёрку по сравнению с "Огоньковским" пластиком. Объяснять я думаю не нужно. Это что то 
И так, во - первых, снёс всё что было на палубе. Все отлитые надстройки вырезал, в дальнейшем буду их облагораживать отдельно. Соответственно дыры проклеил пластиком. Расширил вставками палубу, подогнал под шпон. Сделал иллюминаторы. Просверлил отверстия под шпигаты. В реальности У Паллады было по 7 шпигатов с каждого борта, у Авроры и Дианы по 8. Не было одного кормового шпигата. Заделаны отлитые в пластике клюзы. В дальнейшем будут заменены на отлитые из смолы. По бортам снесены по два спонсона под орудия Этих спонсонов на Палладе не было, а были порты орудий. На их место вклеил вставки. Пока не выравнивал прорезанные порты. Это буду делать после вклейки палубы в корпус. . Причем на крейсере, на верхней палубе, крышки портов были сняты перед уходом на Восток. Ну и прорезаны в бортах порты орудий. Продолжение следует....
Александр
Так Вы "Палладу" из "Авроры" делаете, я правильно понимаю?
Лучшее - враг хорошего.
Привет из Владивостока!
Fedot . Да Фёдор, из "Огоньковской" Авроры. В первом топе я написал, из чего буду делать. Сам я ещё корпуса делать не умею, в смоле её так же нет. Поэтому использую пластик от набора Авроры. Он самый близкий , систершипы ведь. Да, можно на ТЫ?
Александр
Приветствую. В СМОЛЕ "ПАЛЛАДА" ЕСТЬ!!! КОМБРИГОВСКАЯ, КЛАССНАЯ!!! 1-350. ОЧЕНЬ РЕКОМЕНДУЮ. У НИХ ВООБЩЕ ВСЕ ТРИ СЕСТРЫ ЕСТЬ. Но если Вам нужен именно 400-й, то без вариантов "Огонек"
С Уважением, Иван.
Иван, я пока не готов отдавать более 15 тысщ за Палладу. Согласен, классные модели. Но мне бы на пластике научиться уму-разуму. Так что пластик от огонька:f09fa4aa:. Тем более у меня 400 масштаб, и Богини будут на одной подставке.
АлександрДа, можно на ТЫ?
Лучшее - враг хорошего.
Привет из Владивостока!
В любой масштаб можно отмасштабировать?
Отмасштабировать 3Д-шку в любой масштаб можно одной командой. Только не всегда это нужно делать.
Не верьте тем, кто рассказывает, что вот он "нарисовал и напечатал что-то в "сотке", но если надо, может перемасштабировать и напечатать в любом другом масштабе". Как правило, 3Дшку для последующей печати приходится рисовать, ориентируясь на конкретный масштаб и возможности принтера.
Поясню на рендере той же "Птички", показанном в посте #9.
Это нарисовано для 350-го масштаба. Самые тонкие детали (например, волноотбойник, трубки двигателя, тумбы кнехтов, лопасти винта, рейки решеток) имеют толщину 0.2-0.25мм, что уверено пропечатывается и не сильно отличается по толщине от той же "фототравленки". При этом немасштабность (переразмеренность) этих деталей не бросается в глаза. Уменьшить до 400-го можно, ничего не меняя - толщина этих деталей станет 0.18-0.22мм, что также хорошо пропечатывается. А вот если уменьшать до 700-го, некоторые детали пропечатываться либо не будут, либо будут с браком. Поэтому под 700-й масштаб приходится многое перерисовывать, увеличивая толщину.
С увеличением масштаба картинка обратная. В 350-м некоторые вещи упрощены (например, на круглых люках нет петель, нет отдельных деталей на паровом котле и самом двигателе). В 200-ке их отсутствие уже будет заметно. Сильно будет заметна и переразмеренность того же волноотбойника, лопастей и шага решетки, толщина которых станет 0.35-0.4мм. Следовательно, для 200-ки тоже надо многое перерисовывать.
Т.е., резюмируя, можно сказать, что масштабирование без потери качества печати возможно только в некоторых диапазонах.
А еще что у Вас можно "отмасштабировать"?
Это смотря в какой масштаб.
В наличии есть в 350-ке и в 700-ке все гребные средства на РИФ, почти все катера на РИФ (34-футовые трех типов, 40-футовые трех типов, 45 футовый, 50-футовые трех типов, 55-футовый "Торникрофт", 56-футовые двух типов).
Также в 350-ке и 700-ке имеется артиллерия для РИФ: пулемет Максима, 5-ствольные 37-мм и 47-мм Гочкисы, одноствольные 37-мм и 47-мм Гочкисы на прямых и наклонных тумбах, 47-мм Гочкис на "кринолиновом" станке, 75-мм Канэ на станках Канэ, Меллера, Металлического и Обуховского заводов, 102-мм Обуховского завода. 120-мм Канэ, 152-мм Канэ.
Если будете "масштабировать"- можно и на на масштабировать стволов 305 мм в 400-м и 152 мм тоже в 400-м?
Речь, как я понимаю, просто про стволы, без станков?
Тогда 152-мм длиной 45клб - без проблем, 305мм (какой длины?) и других 152-мм надо рисовать. При наличии нормального чертежа, где не приходится что-то угадывать или сверять с массой фотографий, ствол рисуется за 10 минут.
Домашняя судоверфь: https://vk.com/club236993090
Если не ошибаюсь, про якоря не забудь, вроде отличаются от Авриевых.
Так и есть, "Паллада" и "Диана" имели якоря типа Мартина, "Аврора" - Холла
Отмасштабировать 3Д-шку в любой масштаб можно одной командой. Только не всегда это нужно делать.
В принципе, все как я и думал. Все логично. Ваш основной масштаб 350 самый востребованный, оно и понятно - много наборов продается этого масштаба. К сожалению (моему) с 200-м хуже, но хоть что-то есть.
Лучшее - враг хорошего.
Привет из Владивостока!
Константин, спасибо. Я в своей Стройке продолжил.
С уважением, Юрий.
Что касается ума, он светлехонек весьма:
cлава Богу, отличаем незабудку от дерьма!
Александр Наливайский
Совершенно верно. Отличались не только якорями, но и якорными подушками.
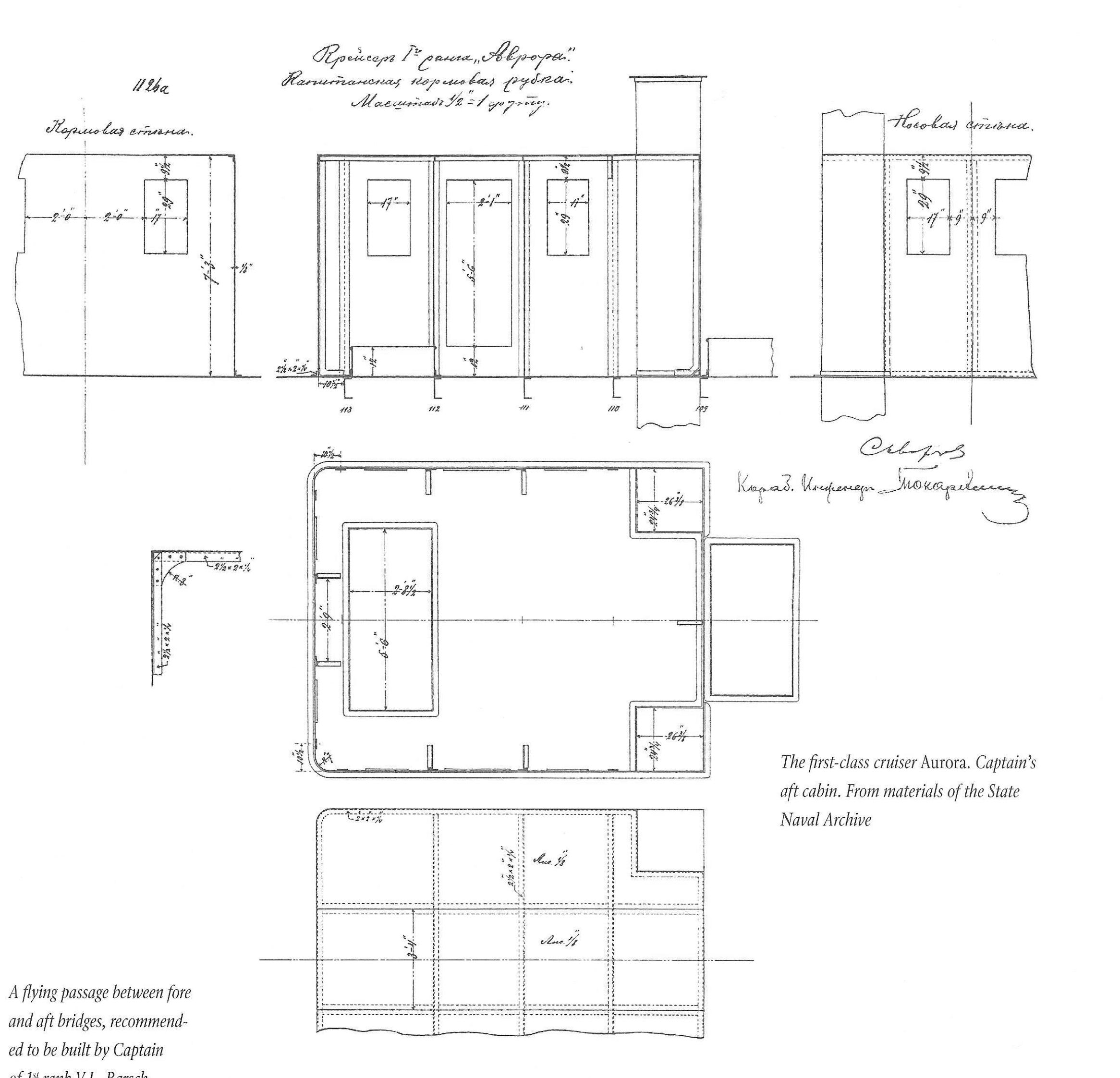
Спасибо Костя! Это всё у меня есть. Мне бы детальный чертёж кормовой надстройки, которая расположена за гротом перед защитой кормового 152 орудия? Не знаю как правильно называется эта защита.
Мне бы детальный чертёж кормовой надстройки, которая расположена за гротом аперед защитой кормового 152 орудия?
Это та, которая кормовая (командирская) рубка? Похоже, она была такая же, как на "Авроре". Чертеж авроровской есть в "Мидель-шпангоуте" № 29 (А.В.Скворцов. Крейсера I ранга "Аврора", "Диана" и "Паллада"
на стр.54.
К сожалению, у меня эта книга только в бумаге, а возможности отсканировать нет. Может быть, кто-то из коллег поможет?
Домашняя судоверфь: https://vk.com/club236993090
Костя а можешь прислать на почту чертежи? А в смоле сделать можно?
Костя а можешь прислать на почту чертежи?
Как? Говорю же - в электроне нет, возможности отсканировать тоже нет.
А в смоле сделать можно?
Домашняя судоверфь: https://vk.com/club236993090
Не это?
С уважением, Юрий.
Что касается ума, он светлехонек весьма:
cлава Богу, отличаем незабудку от дерьма!
Может быть, кто-то из коллег поможет?
Если в Питере, то помогу. В т.ч. и широкоформатными.
Пишите в личку.